parking information

Parking is allowed in designated lots and requires a parking permit (included with your stay).
This permit must be displayed in the driver-side rear window and is valid for one vehicle in
one of the designated parking lots.

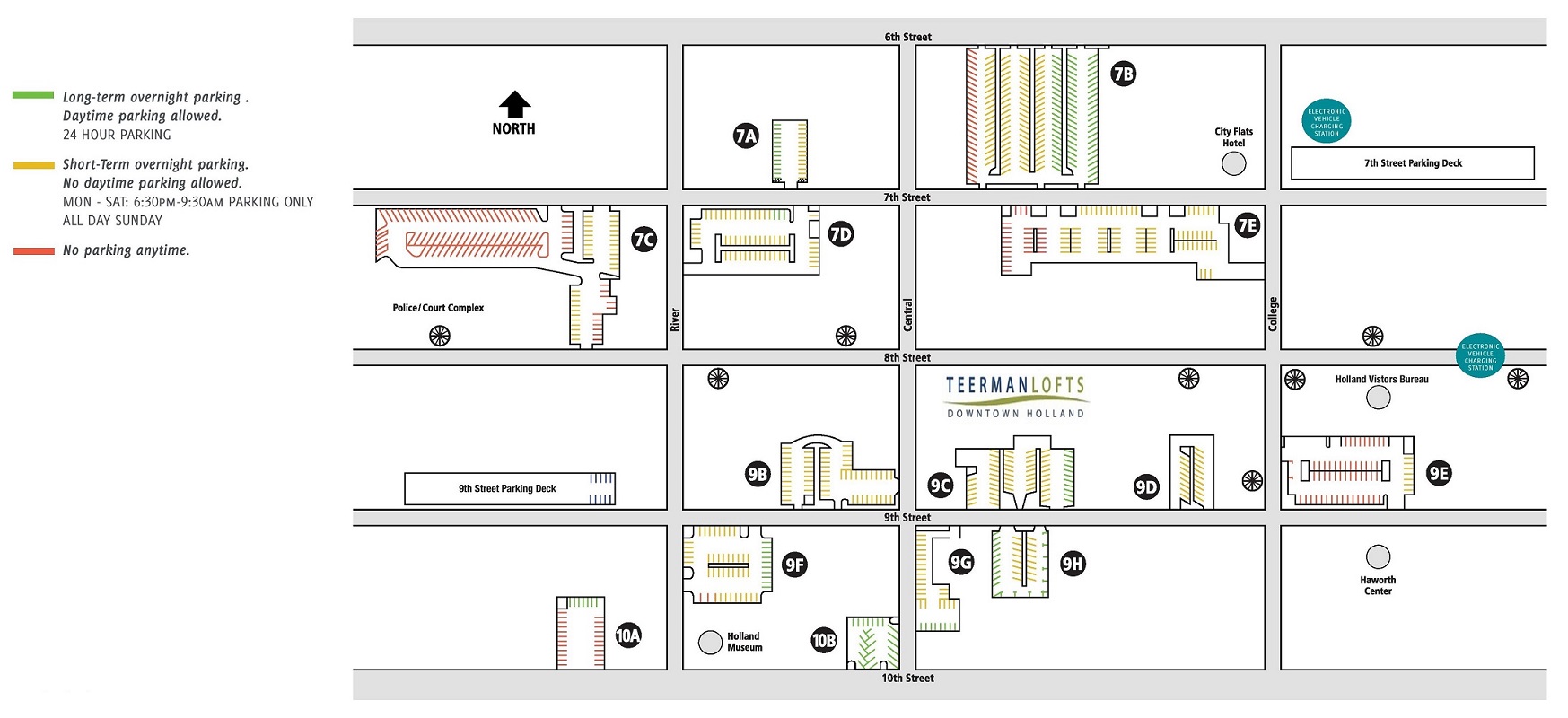
(Click here to see map).

The four closest parking lots are:

  • Lot 9C (Main Lot adjacent to the Teerman Lofts)
      - Overnight parking (6:30 pm - 9:30 am): All parking spaces may be used
      - Daytime parking (9:30 am - 6:30 pm): Parking only allowed in spaces along the EAST wall of the lot
         (between the trash dumpster and the road)
  • Lot 9H (Lot on South side of 9th Street)
      - Overnight parking (6:30 pm - 9:30 am): All parking spaces may be used
      - Daytime parking (9:30 am - 6:30 pm): Parking only allowed in spaces along the outside perimeter of lot
  • Lot 9G (Lot on SE corner of 9th and Central Avenue)
      - Overnight parking (6:30 pm - 9:30 am): All parking spaces may be used
      - Daytime parking (9:30 am - 6:30 pm): Parking only allowed in spaces along the South end of the lot
  • Lot 10B (Lot on South side of 9th Street)
      - Overnight parking (6:30 pm - 9:30 am): All parking spaces may be used
      - Daytime parking (9:30 am - 6:30 pm): All parking spaces may be used


  • Note: For driving directions to the parking lot, enter 15 East 9th Street, Holland, MI into your GPS device.